[soudan 15173] セットバックされた土地の評価
2025年10月23日
税務相互相談会の皆さん
下記について教えて下さい。
【税 目】
相続・贈与税<財産評価>(井上幹康税理士)
【対象顧客】
個人
【前 提】
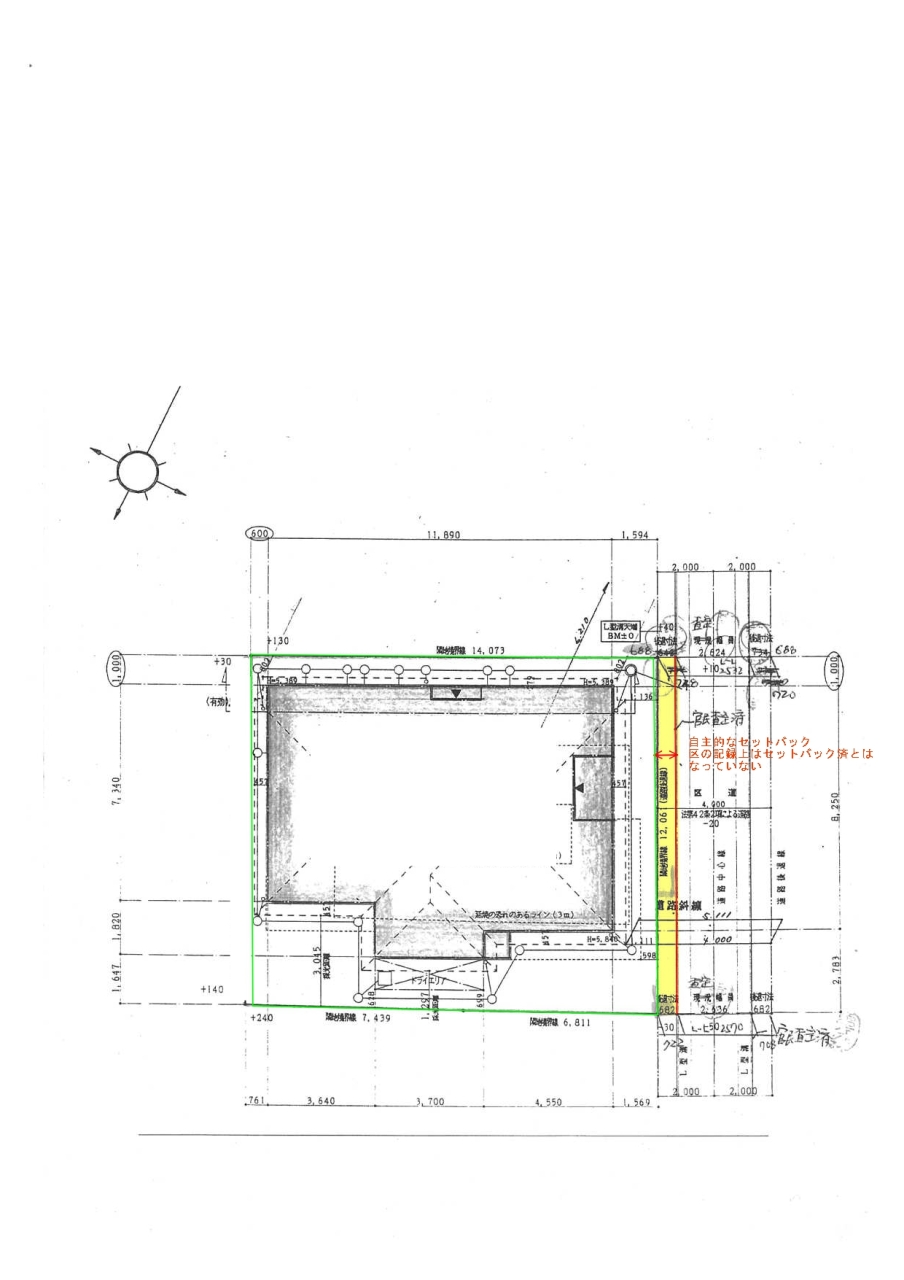
・区有通路(区の担当者は区有通路と言っているが、
建築計画概要書上は42条2項による道路と記載がある)
に面して戸建てが建っている
・セットバック済みであるが、
自家用車がはみ出して駐車されている
・セットバック部分は誰もが通れるようにはなっていない
・登記上、測量図上の地積は170㎡
((仮)セットバック前の地積)
・建築計画概要書上の敷地面積は160㎡
((仮)セットバックが考慮された地積)
【質 問】
セットバック部分の地積10㎡は、
不特定多数の者が通り抜けできない土地であるので
セットバック未了の土地として7割控除の評価を行うことが適切でしょうか。
【参考条文・通達・URL等】
評基通24-6
【添付資料】
https://kachiel.jp/sharefile/sougosoudan/251023_1.jpg
https://kachiel.jp/sharefile/sougosoudan/251023_2.jpg
質問に対する回答部分を閲覧できるのは
税務相互相談会会員限定となっています。
※ご入会日以降に本会へ新規投稿された質問・回答が閲覧できます
税務相互相談会では、月に何度でも
プロフェッショナルに税務実務の質問・相談が可能です。
税務相互相談会にご入会の上
ぜひ、ご質問を投稿してみてください!

